一、概述
本系列腭式閘門應用于冶金、礦山、電力、化工、建材等行業。是各類科粒落料系統的卸料裝置。
二、特點
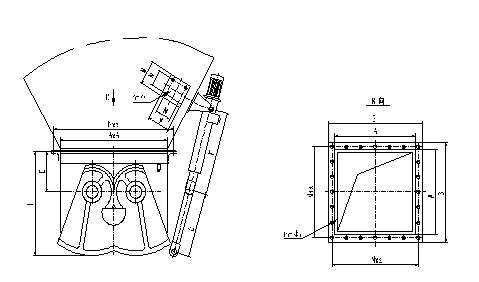
1、DEZ型腭式閘門結構簡單,采用優質鋼板焊接而成,電液動驅動、齒輪傳動,運行平穩,故障率低,維護方便,可以快速切斷料流。
2、HDEZ型環保型腭式閘門采用全封閉結構、結構緊湊、電液推桿驅動、齒輪傳動,運行平穩,故障率低,無卡料現象,維護方便,既能快速切斷料流又環保。
中國.上玉集團有限公司是專業生產特殊閥門的廠家,腭式閘門訂貨須知:
一、①腭式閘門產品名稱與型號②腭式閘門口徑③腭式閘門是否帶附件以便我們的為您正確選型。
二、若已經由設計單位選定的腭式閘門型號,請按腭式閘門型號直接向我公司銷售部訂購。
三、當使用的場合非常重要或環境比較復雜時,請您盡量提供設計圖紙和詳細參數,由我們上玉集團的專家為您審核把關。
感謝您訪問上玉集團公司網站,如有任何疑問您可以撥打我們的全國熱線電話:400-887-6587,我們一定會盡心盡力為您提供優質的服務。