本系列插板閥主要 由框架、閥板組成,工作時,連桿受電推力作用帶動閘板作水平方向的
往復運動,達到閥門的啟閉目的。該閥是一種粉料、晶粒料、顆粒料及小塊物料的流量或輸送
的主要控制設備,廣泛使用在冶金、礦山、建材、糧食、化工等行業控制流量變化或迅速切斷
。二、主要性能參數型號 DLVD-I 公稱壓力 0.05 MPa 殼休試驗壓力 0.075 MPa 驅動方式 氣動氣源氣壓 0.4-0.6Mpa 介質流速 28m/s 適用溫度(℃) 350 適用介質 固體物料、晶體料等、空氣、煙氣三、主要零件材料零件名稱 閥體 閥板 閥桿 螺栓 驅動裝置材料 Q235B Q235B 45# 25#鋼 成品件四、結構特點該閥結構簡單、操作靈活、重量輕、無卡阻、裝拆方便;特別適用于各類固體物料和50mm左右
塊狀、團狀物料的輸送及流量調節,安裝不受角度限制,操作方便,能隨時調整開度。采用優
質碳素鋼焊接結構,其強度高、性能好、使用壽命長。
本閥結構簡單、操作靈活、重量輕、無卡阻、裝拆方便;特別適用于各類固體物料和50mm左右塊狀、團狀物料的輸送及流量調節,安裝不受角度限制,操作方便,能隨時調整開度。采用優質碳素鋼焊接結構,其強度高、性能好、性能好、使用壽命長。
二、主要性能參數
| 型號規格 | DLVD-I DN200*200 |
| 公稱壓力 | 0.05 |
| 殼體試驗壓力 | |
| 電源壓力 | 380V |
| 驅動方式 | |
| 電動 | |
| 介質流速 | 28m/s |
| 適用溫度(°C) | 300 |
| 適用介質 | 干燥粉體物料、晶體料等 |
三、主要材質
| 零件名稱 | 閥體 | 閥板 | 閥桿 | 電動裝置 |
| 材料 | 不銹鋼 | 不銹鋼 | 不銹鋼 | 成品件 |
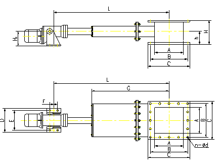
ZFDF電動推桿式方口閘板閥
A、 外形示意圖

B、 外形尺寸表(mm)
尺寸 型號 |
H1 | L | H | h | A | B | C |
| ZFDF200 | 152 | 800 | 140 | 70 | 200 | 130×2 | 306 |
| ZFDF300 | 152 | 930 | 140 | 70 | 300 | 120×3 | 406 |
| ZFDF350 | 152 | 1055 | 140 | 70 | 350 | 135×3 | 456 |
| ZFDF400 | 192 | 1135 | 160 | 80 | 400 | 115×4 | 520 |
| ZFDF500 | 192 | 1285 | 160 | 80 | 500 | 112×5 | 620 |
| 尺寸 型號 |
D | E | F | G | n | d | 電動頭功率(Kw) |
| ZFDF200 | 282 | 230 | 80 | 600 | 8 | φ14 | 0.37 |
| ZFDF300 | 282 | 230 | 80 | 700 | 12 | φ14 | 0.55 |
| ZFDF350 | 282 | 230 | 80 | 825 | 12 | φ14 | 0.75 |
| ZFDF400 | 306 | 260 | 95 | 850 | 16 | φ18 | 1.1 |
| ZFDF500 | 306 | 260 | 95 | 1000 | 18 | φ18 | 1.5 |
中國.上玉集團有限公司是專業生產特殊閥門的廠家,電動方形插板閥訂貨須知:
一、①電動方形插板閥產品名稱與型號②電動方形插板閥口徑③電動方形插板閥是否帶附件以便我們的為您正確選型。
二、若已經由設計單位選定的電動方形插板閥型號,請按電動方形插板閥型號直接向我公司銷售部訂購。
三、當使用的場合非常重要或環境比較復雜時,請您盡量提供設計圖紙和詳細參數,由我們上玉集團的專家為您審核把關。
感謝您訪問上玉集團公司網站,如有任何疑問您可以撥打我們的全國熱線電話:400-887-6587,我們一定會盡心盡力為您提供優質的服務。